Překládací stanice na odpady
- [25.9. 2025]Smazat/ Upravit/ Topovat



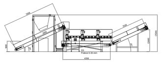
Přeložením odpadu dojde k materiálovému oddělení – magnetických kovů, drobných složek o velikosti 0-30 mm (sklo, bioodpad, inertní materiály,…) a materiálově a energeticky využitelných složek o velikosti 30 a více, které budou následně transportovány na další zpracování – drcení, lisování apod.
Sestava je vhodná na třídění odpadového materiálu. Materiál je překlápěn nakladačem nebo jinak na vynášecí dopravník. Součástí vynášecího dopravníku je magnetický separátor pro vytřídění železných kovů. Odtud je materiál transportován přes diskový separátor, který oddělí materiál o velikosti do 30 mm a nad 30 mm.
Sestava je vhodná na třídění odpadového materiálu. Materiál je překlápěn nakladačem nebo jinak na vynášecí dopravník. Součástí vynášecího dopravníku je magnetický separátor pro vytřídění železných kovů. Odtud je materiál transportován přes diskový separátor, který oddělí materiál o velikosti do 30 mm a nad 30 mm.
|
|
Kontaktovat inzerenta emailem
Kontaktovat emailem může pouze ověřený uživatel.
Ověření je zdarma.
Vaše telefonní číslo *
Kontaktovat emailem může pouze ověřený uživatel.
Ověření je zdarma.
Vaše telefonní číslo *
Podobné inzeráty

Systém třídění balíků cca. 100 metrů, sestávající z:
- Teleskopický dopravník "Caljan" typ LJ3-Medi 5/6,5-600, 380 V, 16 A, rok výroby 2001,
- Systém dopravních pásů „Wegener+Staplel“ cca. 22 běžných metrů,
- Rozvaděč s řízením Siemens, sken ...
21 227 Kč
Brno
618 00
618 00
138 x
Označit špatný inzerát Chybnou kategorii Ohodnotit uživatele Smazat/Upravit/Topovat